Lot 602 Battersby Avenue, Catherine Field
Live within an award-winning masterplanned community!
Lot 602 Battersby Avenue, Catherine Field
3
2
1
$1,065,000
This beautifully designed terrace home is a Ready Built masterpiece by Wisdom Homes.
Catherine Park Estate, crowned Australia’s Best Residential Development 2023, offers an idyllic setting in the sought-after Camden region. Close to Narellan Town Centre, and top local schools such as St Justin’s and St Benedict’s, it’s just a 15-minute* drive to the upcoming Western Sydney Airport. The estate provides convenient access to public transport and major roads like the upgraded Camden Valley Way, M7, and M5. Escape the city bustle with the surrounding conservation land and streams in the South Creek Preservation Area. Enjoy a lifestyle tailored to you, with abundant walkways, cycle paths, expansive green spaces, and sporting facilities, including Catherine Park Oval with outdoor gym equipment, a splash park, a modern off-leash dog area, and much more!
With Inspired Living Inclusions:
- Stainless Steel Appliances
- 20mm Caesarstone Kitchen Benchtop
- Soft Close Drawers to Kitchen Cabinetry
- Semi-Framed Shower Screens
- Freestanding Bath
- 1200mm High Wall Tiling to Bathroom, Ensuite & Powder Rooms
- Security Alarm System
- Ducted Reverse Cycle Air Conditioning
- Letterbox
- Clothesline
And much more!
Speak with one of our Sales Consultants today for more information!
Prices are indicative only and subject to change following confirmation of site conditions, inclusions, statutory requirements, external costs and relevant reports. A fixed price package may be prepared upon request; however, this fixed price may differ from the advertised price. Any changes, variations or upgrades requested by the purchaser, including but not limited to floor plan modifications and upgraded inclusions, may result in a price adjustment. Wisdom Homes reserves the right to amend specifications, materials, products and suppliers without notice where required. Images, renders and photography are for illustrative purposes only and may depict items, finishes or landscaping not included in the advertised price. Please speak with your Wisdom Homes Sales Consultant for detailed house plans and inclusions.Pricing is current as at 23 February 2026 and is subject to change without notice. All plans are subject to approval by relevant Local Authorities and, where applicable, the Principal Developer. Pricing is confirmed and fixed only upon exchange of both the Contract for Sale of Land and the Home Building Contract. E&OE.Wisdom Homes NSW Pty Ltd (ABN 690 174 531). Builder’s Licence 488468C.
Catherine Park Estate, crowned Australia’s Best Residential Development 2023, offers an idyllic setting in the sought-after Camden region. Close to Narellan Town Centre, and top local schools such as St Justin’s and St Benedict’s, it’s just a 15-minute* drive to the upcoming Western Sydney Airport. The estate provides convenient access to public transport and major roads like the upgraded Camden Valley Way, M7, and M5. Escape the city bustle with the surrounding conservation land and streams in the South Creek Preservation Area. Enjoy a lifestyle tailored to you, with abundant walkways, cycle paths, expansive green spaces, and sporting facilities, including Catherine Park Oval with outdoor gym equipment, a splash park, a modern off-leash dog area, and much more!
With Inspired Living Inclusions:
- Stainless Steel Appliances
- 20mm Caesarstone Kitchen Benchtop
- Soft Close Drawers to Kitchen Cabinetry
- Semi-Framed Shower Screens
- Freestanding Bath
- 1200mm High Wall Tiling to Bathroom, Ensuite & Powder Rooms
- Security Alarm System
- Ducted Reverse Cycle Air Conditioning
- Letterbox
- Clothesline
And much more!
Speak with one of our Sales Consultants today for more information!
Prices are indicative only and subject to change following confirmation of site conditions, inclusions, statutory requirements, external costs and relevant reports. A fixed price package may be prepared upon request; however, this fixed price may differ from the advertised price. Any changes, variations or upgrades requested by the purchaser, including but not limited to floor plan modifications and upgraded inclusions, may result in a price adjustment. Wisdom Homes reserves the right to amend specifications, materials, products and suppliers without notice where required. Images, renders and photography are for illustrative purposes only and may depict items, finishes or landscaping not included in the advertised price. Please speak with your Wisdom Homes Sales Consultant for detailed house plans and inclusions.Pricing is current as at 23 February 2026 and is subject to change without notice. All plans are subject to approval by relevant Local Authorities and, where applicable, the Principal Developer. Pricing is confirmed and fixed only upon exchange of both the Contract for Sale of Land and the Home Building Contract. E&OE.Wisdom Homes NSW Pty Ltd (ABN 690 174 531). Builder’s Licence 488468C.
For more information contact Wisdom Homes Enquiries
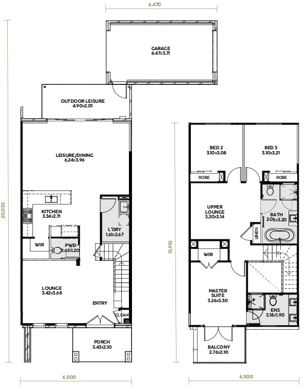
Floorplan
3
2
1
Lower Floor 79.3m2
Upper Floor 77.35m2
Porch 6.86m2
Outdoor Leisure 12.06m2
Garage 24m2
Gross Floor Area 199.57m2Lot Width 6.5m
Lot Depth 20.03m
Lot Size 223.09m2