Manhattan Manor Collection
A bespoke luxury lifestyle
Manhattan Manor Collection
With customisable lifestyle options that will suit both large and multi-generational families, the Manhattan is the epitome of a luxury family home.
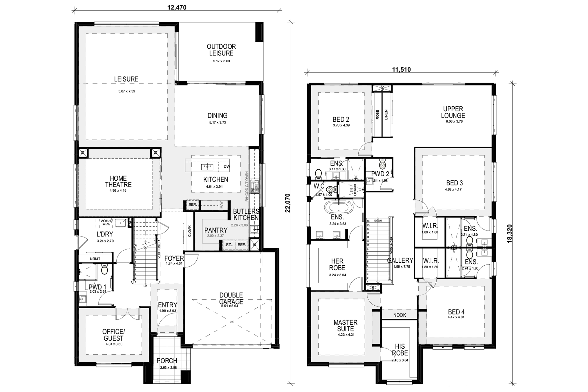
The ground floor is all about lifestyle, whether that’s hosting extended family and friends, relaxing or working. The luxe gourmet kitchen comes with the separate butler’s kitchen and pantry, perfect for the modern cook when entertaining. Opening onto the large dining area and oversized leisure area, light fills the room from ceiling height glass doors to the covered outdoor leisure space. The dedicated home theatre and quiet home office further add to the family’s options and there’s a convenient downstairs powder room.
The Manhattan 56 boasts a Nanny’s quarters, which could opt as a perfect guest retreat or additional accommodation for the multi-generational family.
The luxurious master suite features a grand his and hers wardrobe and a gorgeous ensuite with free-standing bath and twin vanity. Three additional double bedrooms all have their own ensuite facilities and built-in robes and the upper retreat makes for a great getaway.
With many luxury design elements ranging from the separate self-contained nanny or grandparent quarters, an integrated lift and wine cellar, you can create your very own modern bespoke home.
The ground floor is all about lifestyle, whether that’s hosting extended family and friends, relaxing or working. The luxe gourmet kitchen comes with the separate butler’s kitchen and pantry, perfect for the modern cook when entertaining. Opening onto the large dining area and oversized leisure area, light fills the room from ceiling height glass doors to the covered outdoor leisure space. The dedicated home theatre and quiet home office further add to the family’s options and there’s a convenient downstairs powder room.
The Manhattan 56 boasts a Nanny’s quarters, which could opt as a perfect guest retreat or additional accommodation for the multi-generational family.
The luxurious master suite features a grand his and hers wardrobe and a gorgeous ensuite with free-standing bath and twin vanity. Three additional double bedrooms all have their own ensuite facilities and built-in robes and the upper retreat makes for a great getaway.
With many luxury design elements ranging from the separate self-contained nanny or grandparent quarters, an integrated lift and wine cellar, you can create your very own modern bespoke home.
Floorplan
Select Size:
5
5.5
2
Lower Floor 183.87m2
Upper Floor 184.28m2
Porch 5.61m2
Outdoor Leisure 19.01m2
Garage 34.87m2
Gross Floor Area 427.64m2
5
5.5
2
Lower Floor 186.25m2
Upper Floor 196.74m2
Porch 6.78m2
Outdoor Leisure 18.58m2
Garage 34.15m2
Gross Floor Area 442.5m2
5
6.5
3
Floorplan Details:
Nanny: 56.07
Carport: 22.77
Lower Floor 181.37m2
Upper Floor 188.84m2
Porch 5.72m2
Outdoor Leisure 17.96m2
Garage 34.49m2
Gross Floor Area 428.38m2
Virtual Tour
Display Locations
HomeWorld Box Hill
24-34 Noah Street, Box Hill
Standard trading hours
Open 7 days, 10am - 5pm