Carrington Manor Collection
Where grand living meets effortless entertaining
Carrington Manor Collection
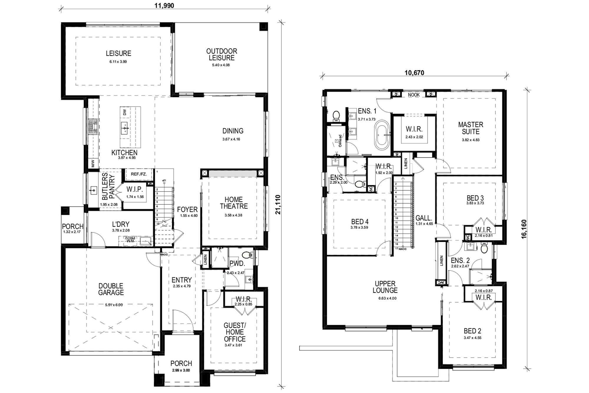
A true statement in grand family living, the Carrington has been thoughtfully designed for those who want space to entertain, room to retreat and everyday living without compromise. With four generously proportioned bedrooms, each complete with its own private ensuite, this home is perfectly suited to families with older children who value both independence and comfort.
Multiple living zones ensure the home adapts to every stage of family life. A dedicated home theatre creates the ideal space for movie nights and weekend relaxation, while a private home office provides a quiet retreat for work or study. Upstairs, the spacious lounge offers a central hub for family downtime, separate from the activity of the main living areas below.
At the heart of the home, the expansive open-plan kitchen, dining and leisure area brings everyone together. Designed with entertaining in mind, this light-filled space flows seamlessly to the outdoor leisure area, creating an impressive indoor–outdoor connection that’s perfect for hosting guests, celebrating milestones or enjoying relaxed evenings with family and friends. Grand in scale and refined in detail, the Carrington delivers a balanced blend of luxury, functionality and timeless appeal within the Manor Collection.
Multiple living zones ensure the home adapts to every stage of family life. A dedicated home theatre creates the ideal space for movie nights and weekend relaxation, while a private home office provides a quiet retreat for work or study. Upstairs, the spacious lounge offers a central hub for family downtime, separate from the activity of the main living areas below.
At the heart of the home, the expansive open-plan kitchen, dining and leisure area brings everyone together. Designed with entertaining in mind, this light-filled space flows seamlessly to the outdoor leisure area, creating an impressive indoor–outdoor connection that’s perfect for hosting guests, celebrating milestones or enjoying relaxed evenings with family and friends. Grand in scale and refined in detail, the Carrington delivers a balanced blend of luxury, functionality and timeless appeal within the Manor Collection.
Floorplan
Select Size:
5
4
2
Lower Floor 162.52m2
Upper Floor 155.15m2
Porch 10.46m2
Outdoor Leisure 22.03m2
Garage 36.41m2
Gross Floor Area 386.57m2